立田の事務所付き倉庫
中古事務所付き倉庫 岡山市北区立田
立田の事務所付き倉庫
基本情報
| エリア | 岡山市北区立田 |
|---|---|
| 価格 | 1600万円 |
| 諸費用 | |
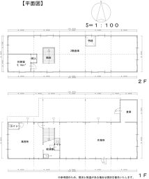
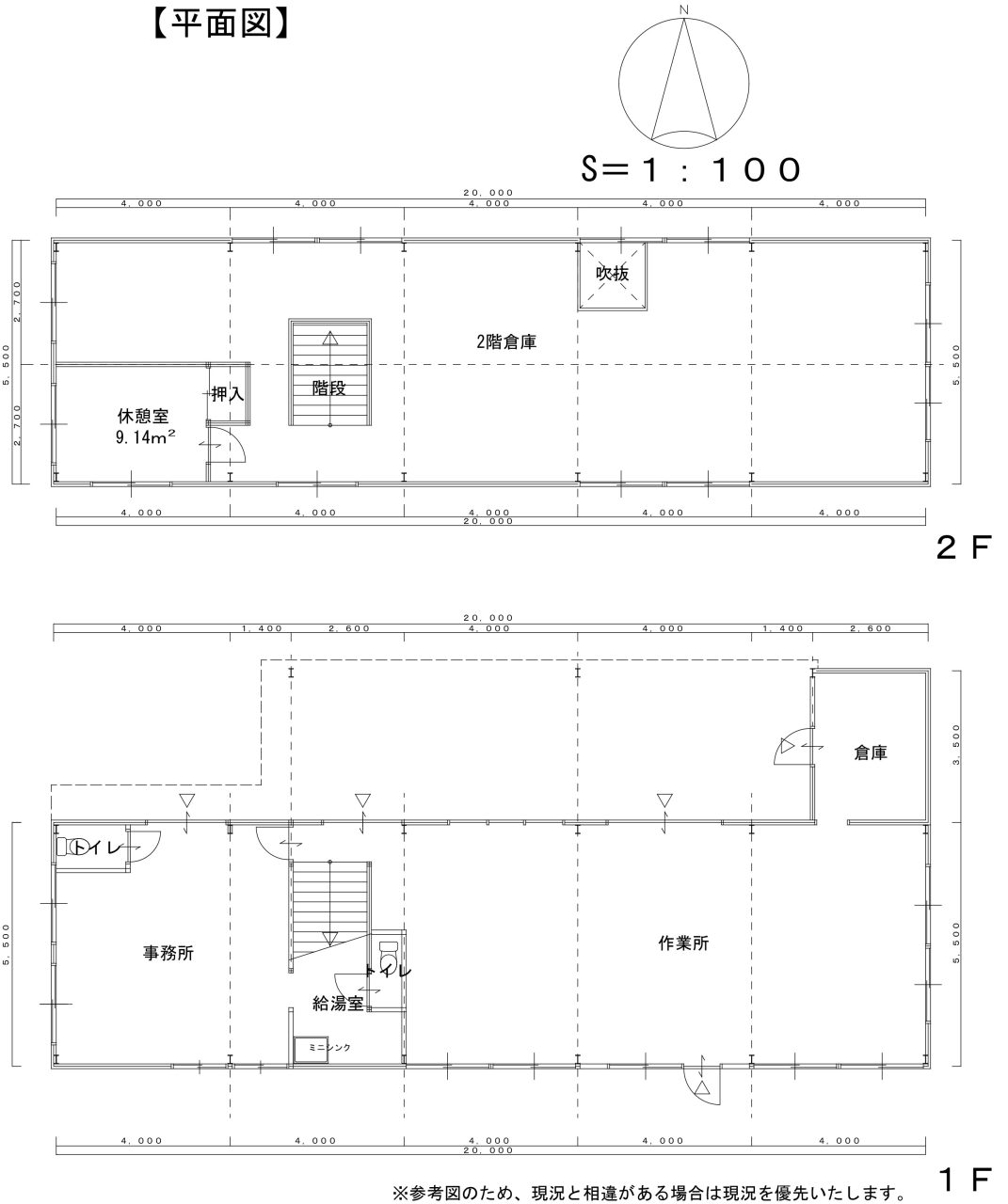
| 間取り(詳細含む) | 事務所+トイレ2箇所+給湯室+倉庫+休憩室 |
| 建物面積 | 227.66㎡ |
| 建築年(築年数) | 昭和46年10月(築53年) |
| 階建 | 2階建て |
| 土地面積 | 626.69㎡(107.66坪) |
| リフォーム・リノベーション | くみ取りトイレ→浄化槽トイレに改修済み 屋根板金→葺き替え改修済み |
| 現況 | 利用中 |
| 入居時期 | 要相談 |
| 取引態様 | 媒介 |
| 担当者 | 井澤 |
| 情報更新日 | 2026-01-05 |
詳細情報
| 所在地 | 岡山市北区立田629番2、629番5 |
|---|---|
| 学区 | 庄内小学校 約1.6㎞ / 高松中学校 約1.3㎞ |
| 交通 | 吉備線 備中高松駅 徒歩13分 |
| 道路(幅員・接面) | 南公道 幅員約5.0m 接道距離約8.6m (1項1号道路) 西公道 幅員約2.5m 接道距離約22.0m(2項道路) |
| 私道負担 | |
| 都市計画 | 市街化調整区域 |
| 建ぺい率・容積率 | 60% / 200% |
| 構造・工法 | 鉄骨造 スレートぶき 2階建て |
| 施工会社 | 不明 |
| 設備 | 上水道:公益水道 下水道:浄化槽 ガス :個別プロパン 電気 :中国電力 |
| 駐車場 | 敷地内 複数台可能 |
| 備考 | 岡山市北区立田(市街化調整区域)の、線引き前に建築した事務所付き倉庫で2階建ての事務所と倉庫及び工場に分かれた物件。2階にも休憩室を設けているのでいろんな使い方ができます。 |
カテゴリー
- 土地・分譲地
- 戸建・中古マンション
- セミオーダー建売住宅
- 賃貸物件|事業用
- 賃貸物件|住居用
- ・クレル西川原 S棟 101号室,103号室, 106号室, 108号室
- ・メゾンみの 103・202号室 【岡大・理大に近く買い物施設も充実の1K物件♪】
- ・サンシャイン東岡山Ⅱ 101・103・202号室 【敷金0円キャンペーン中!】
- ・ホワイトメゾン学南1棟101号室・305号室 【家具・家電付き、バス・トイレ同室タイプ 】※305は室内洗濯機置場あり♪
- ・南中央町4丁目 ひさますパーキング 7番
- ・アルファステイツ中井町 403号室
- ・CLAIR SETO N棟 106号室(A type 1LDK )、202号室・203号室(Bタイプ 1R)
- ・津島東 月極駐車場(岡大北1)⑥⑩⑪
- ・クレル後楽園 A-2 【BBQも出来る庭付きタウンハウス♪】
- ・津島東 月極駐車場(岡大北2)⑪
- ・新京橋3丁目駐車場 ③
- ・南方5丁目 メゾネットの家 西側
- ・アピアコート谷万成 201、202、205号室
- ・クレル西川原 N棟 105号室
- ・天瀬26駐車場 15番
- ・【居住用・事業用】大供本町 戸建 ~学校近く8LDKの広々貸家~
- ・T-apartment 303、403号室 ~倉敷美観地区目の前の好立地アパート~
- ・築港栄町3-14 月極駐車場
- ・ジュネス東岡山 103、203号室
- ・【賃料値下げしました!】ミ・カサ・御成 102・105・202・203・205号室
- ・アンビシャス高島 201号室 【駐車場1台は共益費込みで利用可能♪】角部屋!
- ・【1階のみ賃料値下げしました!】パールハイツ A棟:102、201号室 B棟:103,202, 203,205,206号室 ~ウッドタイルの床とウッドフェンスのあるお部屋~
- ・谷山コーポ A棟 201号室 ~京山中学校徒歩3分!広々3DK~
- ・春日町マンション 303・305・403号室 ~ペット相談OK!~
- ・【直接来店でフリーレント1カ月♪】ホワイトメゾン学南1棟 102,302(家電3点付き・家具付き・バス・トイレ別タイプ・リフォーム済)
- ・富田町1丁目久良駐車場 ②
- ・ジュネス東岡山 103号室
- ・スポーツ岡山 301号室
- ・館202 103号室
- ・館202 101号室
- ・サザンコーポ 201号室
- ・アークハイツ富田町 602、603号室
- ・オーランド富田町 106号室
- ・アークハイツ富田町 205,301,305,401,505,701号室
- ・ハナミズキ 3号地
- ・富田町共同ビル213

















岡山市北区立田(市街化調整区域)の、線引き前に建築した事務所付き倉庫で2階建ての事務所と倉庫及び工場に分かれた物件。2階にも休憩室を設けているのでいろんな使い方ができます。